Villa singola in vendita

Leno, Via Fratelli de Giuli
€ 448.000
180 Mq 180 Mq

Villa singola in vendita

Leno, Via Fratelli de Giuli

Descrizione annuncio

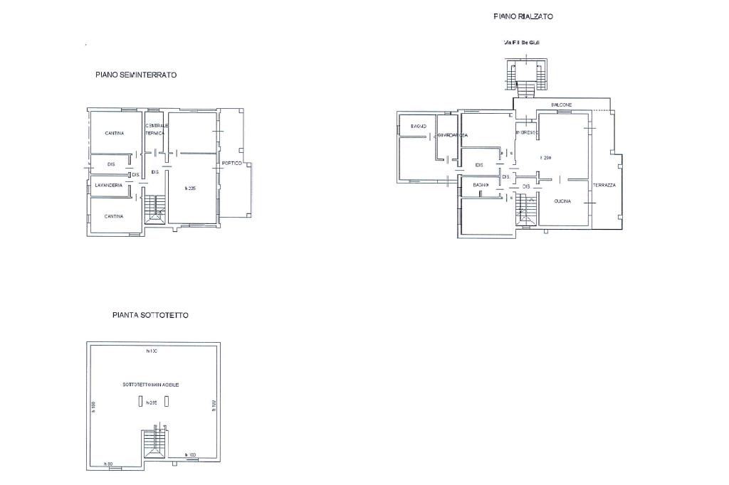
LENO: Situata in posizione centralissima e comoda a tutti i principali in vendita un'elegante e raffinata Villa singola, di ampia metratura, disposta su 2 livelli e circondata da giardino.

Dall'ingresso si accede direttamente al grande e luminoso salone con balcone; la cucina è separata, abitabile e affaccia sulla terrazza vivibile coperta fronte giardino.

Dal corridoio si accede alla zona notte composta da 3 camere da letto matrimoniali, doppi servizi, studio e stanza arredata a cabina armadio.

Il piano terra della Villa è dotato delle stesse finiture del piano abitativo e gode di una luminosissima ed ampia taverna con camino e da una zona cottura separata, abitabile e con accesso diretto al portico sul fronte giardino; la Villa, al piano terra, dispone inoltre di altre 2 stanze, di un bagno, di una lavanderia e del doppio garage.

Dotazioni e finiture:

Riscaldamento a pavimento con termostato in ogni ambiente, impianto fotovoltaico, cappotto, serramenti ad alta efficienza, basculanti sezionali motorizzate e giardino piantumato irrigabile.

Mostra tutto

Nelle vicinanze

Trasporto pubblico Trasporto pubblico
Italmark - nord
Italmark - nord
90 m
Italmark - sud
Italmark - sud
100 m
Ricariche auto elettriche Ricariche auto elettriche
GardaUno Leno
430 m
Scuole Scuole
Scuola Secondaria di Primo Grado Carlo Dossi
100 m
Scuola primaria
150 m
Istituto di istruzione superiore Vincenzo Capirola
180 m
Farmacia Farmacia
Farmacia Sartirana
240 m
Farmacia Bravi
430 m
Ospedali Ospedali
Ospedale di Leno
640 m
Supermercati Supermercati
Italmark
160 m
Prix Quality
190 m
Lidl
760 m
Eurospin
800 m
Simply Sma
1,0 Km
Negozi Negozi
Les Amis
280 m
Forneria Bonazzoli
280 m
Forneria Panina
390 m
Dal Fornaio
450 m
Prime vanità
520 m
Bar Bar
Bandiera Gialla
90 m
Bar Commercio
120 m
Bar
120 m
Forneria Guerreschi
160 m
Bar Trocol
270 m
Ristoranti Ristoranti
Osteria degli amici
410 m
L'Ocanda
640 m
MA-TI
810 m
De Jordano
840 m
El Caminito
1,1 Km
Mostra tutto

Caratteristiche

Rif.:
61129224
Totale piani:
2
Condizionamento:
Autonomo
Ascensore:
No
Riscaldamento:
Autonomo
Giardino:
Privato
Mostra tutto
Prezzo Prezzo
€ 448.000
Rata mutuo Rata mutuo
€ 2.137 / mese
Spese annue Spese annue
€ 0
Proponi il tuo prezzoProponi il tuo prezzo

Classe Energetica

G
G
G
G
G
G
G
G
G
EP globale non rinnovabile:
167.61 kW h/m² anno
EP invernale del fabbricato:
EP estiva del fabbricato:
Anno di costruzione:
2007
Riscaldamento:
Autonomo
Tipo impianto:
A pavimento
Tipo alimentazione:
Metano

Ti interessa visionare l'immobile?

Fissa un appuntamento  Fissa un appuntamento

Richiedi informazioni

Clicca su Leggi per aprire l'informativa
* Questi campi sono obbligatori

Calcola il tuo mutuo

Semplice e senza impegno
Anticipo

( % )
Mutuo

( % )

pochi semplici passi

inserisci i tuoi dati
Questionario completato
Grazie per aver richiesto un appuntamento senza impegno con un nostro Consulente del Credito e Assicurativo.

Hai inserito correttamente tutti i dati necessari e a breve riceverai una e-mail con un link da convalidare per inviare i tuoi dati.
Affiliato
Agenzia Imm.re Leno Srl
Via Garibaldi, 1/3 25024 Leno (BS)

Il nostro staff


  • Enrico Treccani
    Affiliato

  • Cristian Perotti
    Affiliato

  • Manpreet Kaur
    Coordinatrice
Via Garibaldi, 1/3 25024 Leno (BS)
Zona: Leno-Pavone Mella-Cigole
Mostra su mappa
Orari: Lunedì-Venerdi 8.30-12.00/14.30-20.00.Sabato chiusura alle 17.00.Domenica su appuntamento
Affiliato
Agenzia Imm.re Leno Srl
Via Garibaldi, 1/3 25024 Leno (BS)

2026 Tecnocasa Franchising S.p.A. - P. IVA 08365160152 - Via Monte Bianco 60/A 20089 Rozzano (MI). Ogni agenzia ha un proprio titolare ed è autonoma. Privacy policy | Policy utilizzo | Cookie policy